N°07

TEICHHAUS FÜR 2 PERSONEN

N°07

TEICHHAUSER FÜR 2 PERSONEN

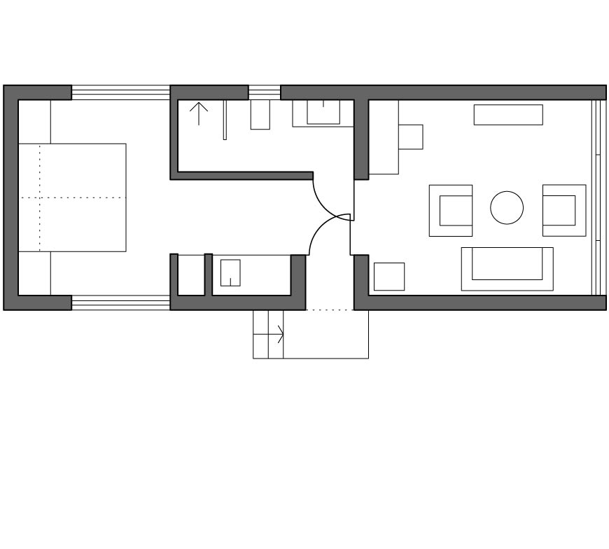
Die beiden Teichhäuser schweben zu einem Drittel über dem Teich. Innen ein Wohnraum mit Panoramafenster, eine Küchenzeile und ein Schlafbereich mit großem Dachfenster.

  • für 2 Personen
  • 40 ㎡ Wohnfläche
  • Schlafbereich mit Doppelbett und Dachfenster
  • Betten von COCO-MAT aus 100 % Naturmaterialien
  • Wohnzimmer über dem Teich
  • Küchenzeile
  • Bad mit Dusche/WC
  • Terrasse in der Wiese vor dem Haus
  • Preis ab 240 €
PREISE / VERFÜGBARKEITEN